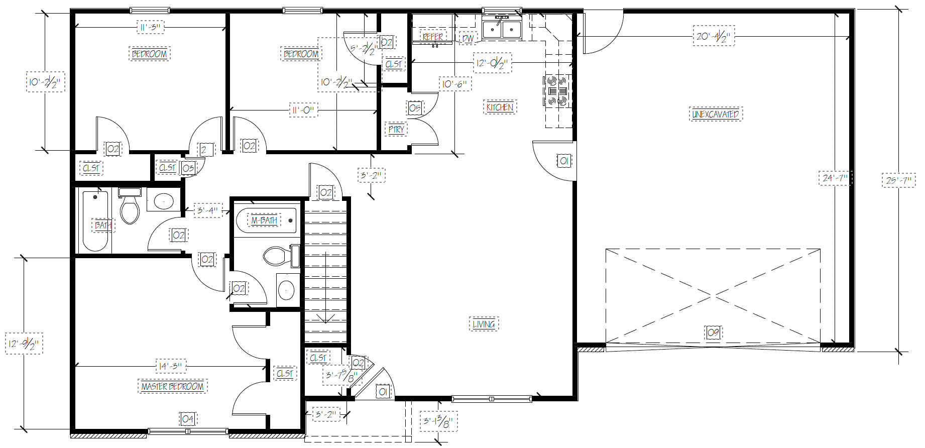
797 Sydney Court
Washington, MO 63090
3 bedrooms | 2 bathrooms | 1,155 Square Feet
Under Construction! This spacious 3-bedroom, 2-bathroom house offers modern amenities for your convenience. The all-electric unit features hard surface floors in living room, kitchen, hallways and bedrooms. The kitchen is equipped with appliances including a dishwasher, and range/oven. Stay comfortable year-round with central HVAC and take advantage of high-speed internet through Charter. Don't miss out on this opportunity to call this house your new home in Washington!



